代官山渋谷桜丘の賃貸なら賃貸仲介手数料無料のケイティーホームズへ
ニュース&トピックス
2025年
2024年
2023年
2022年
2021年
2020年
2019年
2018年
2017年
2016年
2015年
2014年
2013年
2012年
2011年
ニューストピックス
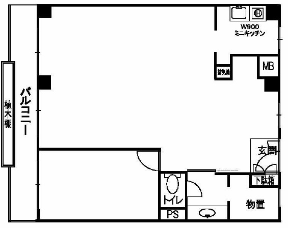
【11月18日内見可能です!】★南平台アジアマンション 事務所 ★お気軽にお問い合わせください! TEL:03-6809-0697
【11月18日内見可能です!】★南平台アジアマンション 事務所 ★お気軽にお問い合わせください! TEL:03-6809-0697
更新日:2019/11/11